首页
论文投稿
登录
注册
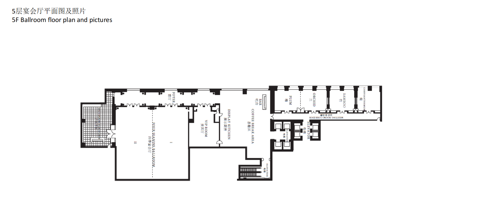
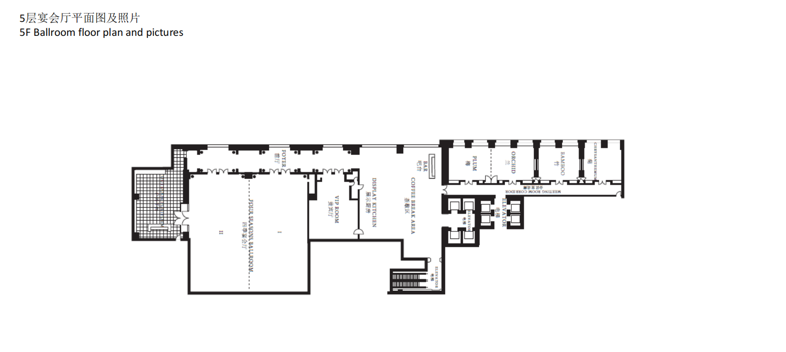
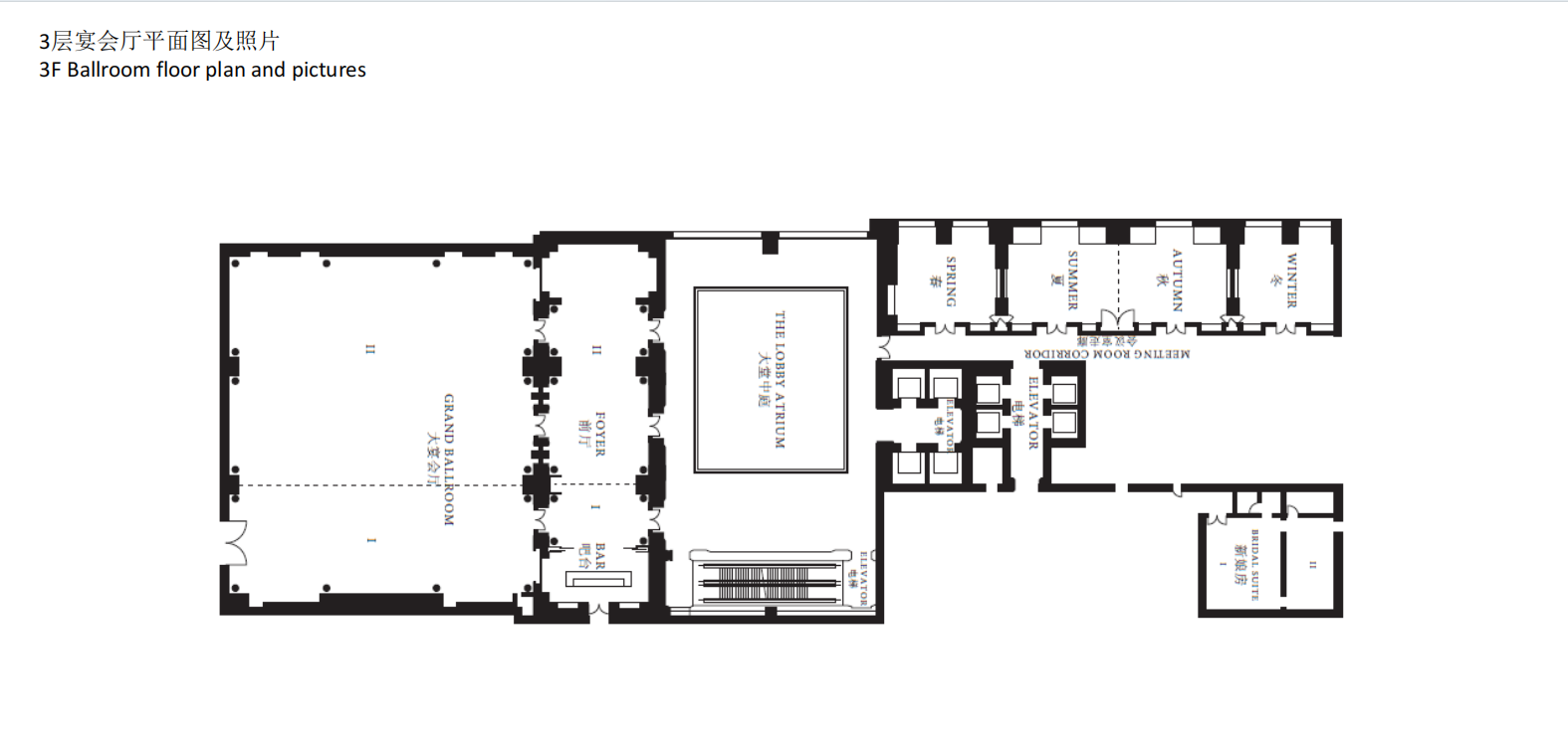
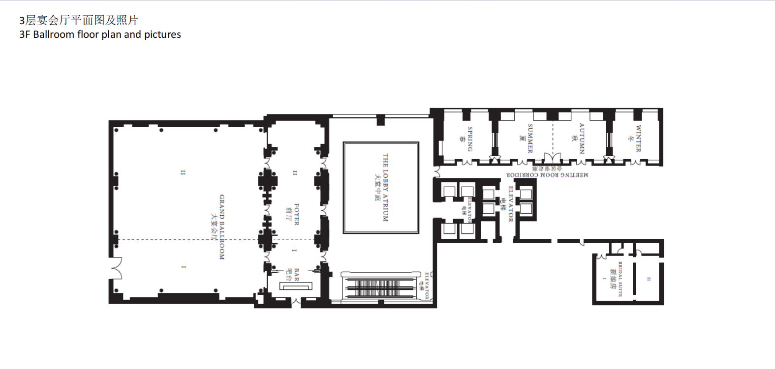
会场分布
首页